Hill Rise Villa IV

This ultra modern 4 bedroom villa is designed to provide residents with the complete Mediterranean luxury lifestyle, offering magnificently lush greenery, ample covered private parking and swimming pool.

More information about this property

Indulge in the Ultimate Island Lifestyle at Hill Rise Villa IV

Located in the tranquil area of Mouttagiaka in Limassol, just 5 minutes from the beach and city, this impressive home uniquely combines practical proximity and indulgent comfort with contemporary smart design that harmoniously merges with the surrounding classically traditional area.

The villa includes large verandas which look out to breathtaking sea views, expansive covered areas, secure privacy and intricately landscaped gardens for cool moments of absolute serenity.

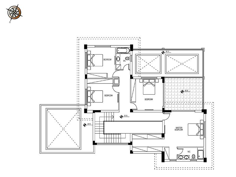
Architectural Plans & Property Details

Bedrooms: 4
Covered Areas: 288 sq m
Swimming Pool: Private
Covered Verandas: 59 sq m
Total Plot Area: 825 sq m
Total Covered Areas: 388 sq m
Uncovered Area: 21 sq m
Status: Sold

Project Location

    Feel free to fill the form below and we will contact you shortly

    We do not store your personal data. We only use it to contact you about your enquiry.

     

    52, Amathountos Avenue, 4532, Ayios Tychonas, Limassol-Cyprus Tel: +357 25 82 82 00 | Fax: +357 25 31 99 80
    Web Development by Website Bakers

    We use cookies to analyse our traffic. We also share info about your use of our site with our analytics partners who may combine it with other info you’ve provided to them or they’ve collected from your use of their services. View Policy